Design Guidelines in the Works for Local Historic District Commission
A mid-century modern entrance way was approved by the LHDC for an historic Garrison home on Sunset Ave/ Photo: Google Maps
Report on the Meeting of the Local Historic District Commission, December 8, 2025
This meeting was held over Zoom and was recorded.
Present
Nancy Ratner (Chair), Greta Wilcox, Ben Lynch, Bruce Coldham, Steve Bloom, Nicole Miller, and Elizabeth Sharpe
The Local Historic District Commission (LHDC) has employed Chris Skelly of the Pioneer Valley Planning Commission to guide the development of design guidelines for building in an historic district for the commission. Skelly explained that having accepted guidelines will provide a framework for approval of projects and will also help applicants to know what is expected in terms of design. He added that guidelines also help in public relations, because if a project is deemed not compatible with the district, the commission can point to the section of the guidelines that it does not meet.
Skelly is in the process of writing an introduction to the guidelines, including a flowchart showing the steps in the application and approval process. He said that the next step is community outreach, which will involve a public meeting, which he hopes can be scheduled for January, 2026.
Nicole Miller suggested that staff liaison Walker Powell reach out to those who have appeared before the LHDC recently to obtain feedback on their experiences in addition to inviting the general public to the meeting.
Steve Bloom pointed out that when he and Skelly presented the proposal for establishing a local historic district in East Amherst to the Planning Board, they got pushback from the board, including LHDC member Bruce Coldham, who said, in essence, “We don’t like these fake old houses. We’re okay with well-designed modern houses.”
Greta Wilcox noted that the LHDC did recently approve a mid-century modern addition to a house on the corner of Sunset and Elm that used wood for a new porch entrance.
Skelly stated that it is important to determine what the community wants, and a phrase often used is “compatible, yet differentiated.” Guidelines can include the types of material that can be used, as well as designs. The existing Rules and Regulations for the Local Historic District are nonspecific, stating that decisions “may be guided by the current versions of such Town of Amherst documents as the Preservation Plan, the Master Plan, the Design Review Board Handbook, the Zoning Bylaw and any other land-use Bylaws of the Town. As to all procedural matters not covered in these Rules and Regulations, those of the Zoning Bylaw shall apply.”
In public comment, Hilda Greenbaum wondered if a Usonian or Gingerbread house would be acceptable in the district. “How does a modern, contemporary house fit in a traditional neighborhood?” she asked.
Coldham said he would support such a house if it were well designed. Bloom asked, “Where do we draw the line? What if Frank Gehry wanted to build a house in our neighborhood? Would we let him?”
These are issues to be discussed and decided in the development of the design guidelines.
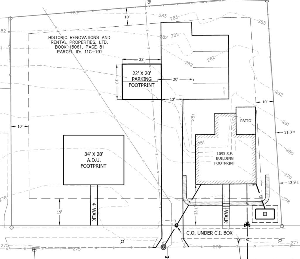
Cape-Style Accessory Dwelling Unit Approved for 68 McClellan Street
Joel Greenbaum received a unanimous vote for a Certificate of Appropriateness to build a two-bedroom, 900-square-foot accessory dwelling unit (ADU) at 68 McClellan Street, a property on which he recently built a four-bedroom single-family home after demolishing a deteriorating structure. The larger home is currently rented to four college students.


The proposed ADU will be located near the street, sharing a driveway with the existing house. Parking will be located at the rear of the lot. Greenbaum said that the cape style fits with the other houses on the street. It will share many of the features with the principal dwelling, such as the window design, wood siding, and a granite porch.
Coldham asked Greenbaum why he was building the ADU over a crawl space, instead of on a slab, which would be less expensive. Greenbaum answered that he thinks a conventional wood floor is more comfortable for residents than a floor over concrete. He assured commission members that the crawl space above the unit could not be used for living space, since it will have the roof joists and insulation.
Abutter Mike Glennon commented that after trees were taken down by a previous owner at 68 McClellan, there has been a drainage problem on the street and sidewalk after heavy rains. He worried that the issues might be worse after the ADU was constructed. Greenbaum said that the water collects because there is a swale on the property, and that he plans to level the ground, so that the stormwater drains properly. He also said that he is happy to plant some trees to screen the parking area.
The proposed ADU meets the criteria for a protected ADU that can be approved by the Building Commissioner and does not need a Special Permit or Site Plan Review.
Public Meeting on Proposed East Amherst Local Historic District Scheduled for December 16
The LHDC will hold a public meeting for feedback on establishing an East Amherst local Historic District on Tuesday, December 16, at 6 p.m. on Zoom.

34×28 = 952 sq ft
is 900 still the max for an adu that is non owner occupied?